Entre em contato com um de nossos especialistas!

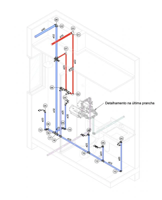
Projeto hidrossanitário residencial

A importância do projeto hidrossanitário residencial

O projeto hidrossanitário residencial é fundamental para garantir conforto, higiene e funcionalidade em uma residência, organizando a distribuição de água e a coleta de esgoto de forma segura.

Um projeto bem elaborado garante o funcionamento eficiente de água e esgoto em construções, prevendo a distribuição correta da rede hidráulica e o escoamento adequado dos resíduos.

Benefícios do projeto hidrossanitário residencial

Um projeto hidrossanitário residencial bem planejado traz diversos benefícios para os moradores.

Além de garantir o abastecimento de água potável em todos os pontos da casa, ele também assegura o correto escoamento de águas servidas e pluviais, evitando possíveis entupimentos e vazamentos.

Com isso, é possível manter a higiene e a saúde dos moradores, além de preservar o meio ambiente.

Etapas do projeto hidrossanitário residencial

O data-link="projeto-hidrossanitario, projeto hidrossanitário" residencial passa por diversas etapas, desde o levantamento das necessidades do cliente até a execução e acompanhamento da obra.

Inicialmente, é feita uma análise detalhada do terreno e das instalações existentes, para então ser elaborado o projeto de distribuição de água e coleta de esgoto.

Após a aprovação do projeto, são realizadas as instalações hidráulicas e sanitárias, seguindo as normas técnicas vigentes.

Importância da contratação de profissionais especializados

Para garantir a eficiência e a segurança do projeto hidrossanitário residencial, é essencial contar com profissionais especializados no ramo da engenharia hidráulica e sanitária.

A empresa TR Engenharia, por exemplo, oferece serviços de alta qualidade na execução de obras e desenvolvimento de projetos prediais, incluindo projetos hidrossanitários residenciais.

Com uma equipe qualificada e experiente, a TR Engenharia garante a excelência em todas as etapas do projeto, desde a concepção até a entrega final.

entre em contato

O projeto hidrossanitário residencial é essencial para garantir o conforto, a higiene e a funcionalidade de uma residência, organizando a distribuição de água e a coleta de esgoto de forma segura.

Um projeto bem elaborado prevê a distribuição correta da rede hidráulica e o escoamento adequado dos resíduos, proporcionando benefícios como o abastecimento de água potável em todos os pontos da casa e a preservação do meio ambiente.

Garanta o conforto e a segurança da sua família, invista em um projeto hidrossanitário residencial de qualidade.

Encontrou o que procurava?

Faça seu orçamento grátis agora mesmo!

Principais regiões onde a TR-Engenharia atende Projeto hidrossanitário residencial:

PE
  • Recife
  • Aldeia (Camaragibe)
  • São Lourenço da Mata
  • Camaragibe
  • Gravatá
  • Olinda
  • Jaboatão dos Guararapes
  • Paulista
  • Cabo de Santo Agostinho
  • Igarassu
WhatsApp 1
TR-Engenharia

Olá! Fale agora pelo WhatsApp