Entre em contato com um de nossos especialistas!

Projeto hidráulico para cozinha em Recife

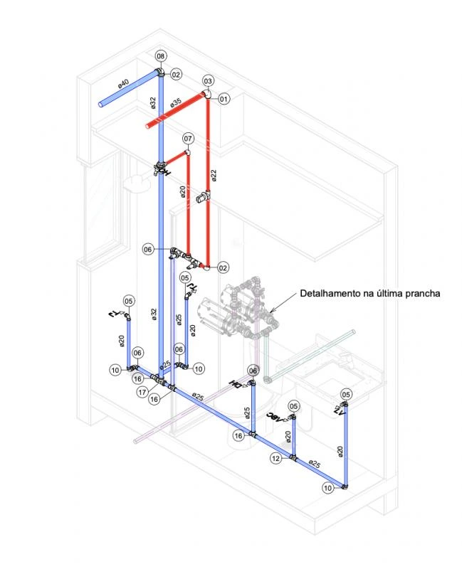
projeto hidráulico para cozinha em recife: Eficiência e Economia de Água

O projeto hidráulico para cozinha em recife é uma etapa fundamental na construção ou reforma de um imóvel, pois garante o correto funcionamento de toda a instalação hidráulica, proporcionando eficiência e economia de água.

Neste contexto, é essencial que o projeto leve em conta o clima da região, a pressão da rede e as normas locais, a fim de garantir um sistema adequado e funcional.

A empresa TR Engenharia, atuante em Recife e municípios próximos, como Aldeia, Baldalhos, São Lourenço da Mata, Camaragibe e Gravatá, é especializada na execução de projetos hidráulicos e pode ser uma excelente opção para quem busca qualidade e eficiência.

Importância do projeto hidráulico para cozinha em recife

O projeto hidráulico para cozinha em recife considera clima, pressão da rede e normas locais para garantir eficiência e economia de água.

Além disso, é fundamental para assegurar o bom funcionamento de todos os pontos de água da cozinha, como pias, torneiras, máquinas de lavar louça e filtros.

Um projeto bem elaborado evita vazamentos, entupimentos e desperdícios, contribuindo para a preservação dos recursos hídricos e para a redução do consumo de água.

Elementos Considerados no Projeto Hidráulico

No projeto hidráulico para cozinha em recife, diversos elementos são considerados para garantir a eficiência do sistema.

A análise do clima da região é essencial para dimensionar corretamente a capacidade de armazenamento de água e a pressão necessária para o funcionamento adequado dos equipamentos.

Além disso, a pressão da rede local deve ser verificada para evitar problemas de abastecimento e garantir o fluxo adequado de água em todos os pontos de uso.

Normas Locais e Legislação Vigente

Outro aspecto importante a ser considerado no projeto hidráulico para cozinha em recife são as normas locais e a legislação vigente.

É fundamental que o projeto esteja em conformidade com as normas técnicas e regulamentações específicas da região, a fim de garantir a segurança e a qualidade da instalação hidráulica.

A TR Engenharia, com sua expertise no setor de engenharia e construção civil, possui profissionais capacitados para desenvolver projetos hidráulicos que atendam a todas as exigências legais.

Projeto Hidrossanitário para Banheiro

Além do projeto hidráulico para cozinha, o data-link="projeto-hidrossanitario-banheiro, projeto hidrossanitário para banheiro" também é fundamental para garantir a correta distribuição de água e esgoto, assegurando conforto, higiene e funcionalidade no ambiente.

Assim como na cozinha, é importante considerar o clima, a pressão da rede e as normas locais na elaboração do projeto, a fim de garantir um sistema eficiente e sustentável.

Eficiência e Qualidade com a TR Engenharia

O projeto hidráulico para cozinha em recife leva em conta clima, pressão da rede e normas locais para garantir eficiência e economia de água.

Por isso, contar com uma empresa especializada como a TR Engenharia pode fazer toda a diferença na execução do projeto.

Desde 2018, a TR Engenharia se destaca pela qualidade de seus serviços e pela expertise de sua equipe, oferecendo soluções completas em obras residenciais e comerciais, projetos elétricos, hidrossanitários, HVAC e combate a incêndio.

Se você busca eficiência, qualidade e economia, conte com a TR Engenharia para o seu projeto hidráulico em Recife.

Encontrou o que procurava?

Faça seu orçamento grátis agora mesmo!

Principais regiões onde a TR-Engenharia atende Projeto hidráulico para cozinha em Recife:

PE
  • Recife
  • Aldeia (Camaragibe)
  • São Lourenço da Mata
  • Camaragibe
  • Gravatá
  • Olinda
  • Jaboatão dos Guararapes
  • Paulista
  • Cabo de Santo Agostinho
  • Igarassu
WhatsApp 1
TR-Engenharia

Olá! Fale agora pelo WhatsApp