Entre em contato com um de nossos especialistas!

Instalações hidrossanitárias para banheiro

Importância das instalações hidrossanitárias para banheiro

As instalações hidrossanitárias para banheiro são responsáveis por garantir o abastecimento de água potável, o aquecimento da água para banho e a correta coleta e escoamento dos resíduos através da rede de esgoto.

É fundamental que esses sistemas sejam projetados e instalados adequadamente para evitar problemas futuros e garantir o bom funcionamento do ambiente.

Benefícios de um Sistema Hidrossanitário Adequado

Um sistema hidrossanitário bem projetado e executado proporciona conforto e praticidade no dia a dia, evitando vazamento, entupimentos e mau cheiro.

Além disso, contribui para a preservação da saúde, uma vez que evita a proliferação de bactérias e fungos causadores de doenças.

Portanto, investir em instalações hidrossanitárias de qualidade é essencial para garantir um banheiro funcional e seguro.

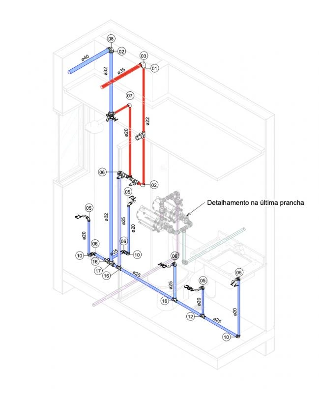
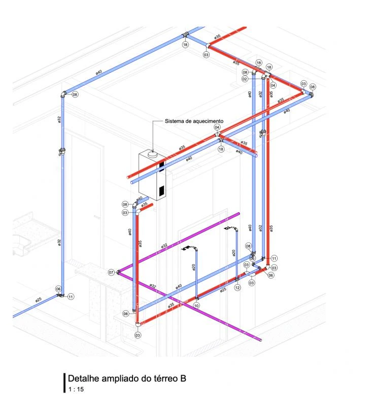
Projeto Hidrossanitário: Planejamento Fundamental

As instalações hidrossanitárias para banheiro envolvem água fria, quente e rede de esgoto. Um bom projeto assegura conforto, higiene e funcionalidade no uso diário.

O data-link="projeto-hidrossanitario, projeto hidrossanitário" consiste em uma série de etapas que vão desde a análise das necessidades do cliente até a execução e entrega da obra.

Inicialmente, é feito um levantamento detalhado do espaço e das demandas do usuário, para então ser elaborado o projeto que contempla a distribuição dos pontos de água, a localização dos ralos e a instalação dos dispositivos sanitários.

É essencial contar com profissionais qualificados e experientes para garantir a eficiência e segurança do sistema.

Erros Comuns a Evitar no Projeto Hidrossanitário

Alguns erros podem comprometer a eficiência das instalações hidrossanitárias, como dimensionamento inadequado dos tubos e conexões, escolha de materiais de baixa qualidade e falta de manutenção preventiva.

Por isso, é importante contar com uma empresa especializada e comprometida com a qualidade dos serviços, como a TR Engenharia.

Um projeto hidrossanitário bem elaborado garante o funcionamento eficiente de água e esgoto em construções. Ele prevê a distribuição correta da rede hidráulica e o escoamento adequado dos resíduos.

Garanta um Banheiro Funcional e Confortável com Instalações Hidrossanitárias de Qualidade

Investir em instalações hidrossanitárias para banheiro de qualidade é fundamental para garantir conforto, higiene e funcionalidade no dia a dia.

Com um projeto bem elaborado e executado por profissionais capacitados, é possível evitar problemas futuros e desfrutar de um ambiente seguro e agradável.

Portanto, não deixe de contar com a expertise da TR Engenharia, empresa especializada em execução de obras, reformas e desenvolvimento de projetos prediais no setor de construção civil.

Com atendimento em Recife e Região Metropolitana, a TR Engenharia oferece serviços de alta qualidade e comprometimento com a satisfação do cliente.

Garanta um banheiro impecável e funcional com as instalações hidrossanitárias adequadas!

Encontrou o que procurava?

Faça seu orçamento grátis agora mesmo!

Principais regiões onde a TR-Engenharia atende Instalações hidrossanitárias para banheiro:

PE
  • Recife
  • Aldeia (Camaragibe)
  • São Lourenço da Mata
  • Camaragibe
  • Gravatá
  • Olinda
  • Jaboatão dos Guararapes
  • Paulista
  • Cabo de Santo Agostinho
  • Igarassu
WhatsApp 1
TR-Engenharia

Olá! Fale agora pelo WhatsApp