Entre em contato com um de nossos especialistas!

Projeto hidráulico e hidrossanitário

projeto hidráulico e hidrossanitário: A Importância da Combinação Perfeita

O projeto hidráulico e hidrossanitário é essencial para garantir o correto funcionamento de um sistema de abastecimento de água e esgotamento sanitário em edificações.

Essa combinação é fundamental para assegurar a segurança, eficiência e durabilidade das instalações hidráulicas, evitando problemas como vazamentos, entupimentos e contaminação da água.

Neste artigo, vamos explorar a importância do projeto hidráulico e hidrossanitário, destacando sua relevância na construção civil e os benefícios de contar com profissionais especializados nessa área.

A Importância do projeto hidráulico e hidrossanitário

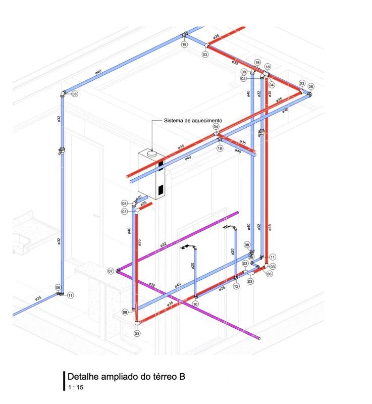
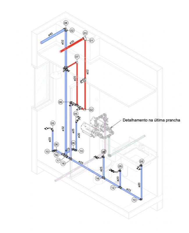
O projeto hidráulico e hidrossanitário combina abastecimento de água e esgotamento sanitário, garantindo um sistema completo e seguro.

Essa integração é fundamental para garantir o correto dimensionamento das tubulações, a escolha adequada dos materiais e a correta instalação dos componentes, evitando problemas futuros e garantindo o pleno funcionamento das instalações.

Além disso, o projeto hidráulico e hidrossanitário também leva em consideração aspectos como a sustentabilidade, a eficiência energética e o conforto dos usuários.

Benefícios do projeto hidráulico e hidrossanitário

Um data-link="projeto-hidrossanitario-banheiro, projeto hidrossanitário para banheiro" bem elaborado traz uma série de benefícios para as edificações, tais como a redução de custos com manutenção, o aumento da vida útil das instalações, a prevenção de danos estruturais e a garantia da qualidade da água consumida.

Além disso, um projeto hidráulico e hidrossanitário eficiente contribui para a preservação do meio ambiente, ao reduzir o desperdício de água e minimizar o impacto ambiental das construções.

TR Engenharia: Especialista em Projetos Hidráulicos e Hidrossanitários

Desde 2018, a TR Engenharia se dedica à execução de obras, reformas e ao desenvolvimento de projetos prediais no setor de engenharia e construção civil.

Oferece serviços como obras residenciais e comerciais, projetos elétricos, hidrossanitários, HVAC e combate a incêndio, além de consultorias e gestão de obras.

Sua atuação abrange Recife e municípios próximos, como Aldeia, Baldalhos, São Lourenço da Mata, Camaragibe e Gravatá.

Com uma equipe qualificada e experiente, a TR Engenharia garante a excelência na execução de projetos hidráulicos e hidrossanitários, atendendo às necessidades e expectativas de seus clientes.

Invista em um projeto hidráulico e hidrossanitário de Qualidade

O projeto hidráulico e hidrossanitário é essencial para garantir o correto funcionamento das instalações de abastecimento de água e esgotamento sanitário em edificações.

Ao contar com profissionais especializados nessa área, como a TR Engenharia, é possível assegurar a segurança, eficiência e durabilidade das instalações, evitando problemas futuros e garantindo o conforto e bem-estar dos usuários.

Portanto, não hesite em investir em um projeto hidráulico e hidrossanitário de qualidade, pois os benefícios a longo prazo são inegáveis.

Garanta a excelência em suas instalações e desfrute de um sistema completo e seguro em sua edificação.

Encontrou o que procurava?

Faça seu orçamento grátis agora mesmo!

Principais regiões onde a TR-Engenharia atende Projeto hidráulico e hidrossanitário:

PE
  • Recife
  • Aldeia (Camaragibe)
  • São Lourenço da Mata
  • Camaragibe
  • Gravatá
  • Olinda
  • Jaboatão dos Guararapes
  • Paulista
  • Cabo de Santo Agostinho
  • Igarassu
WhatsApp 1
TR-Engenharia

Olá! Fale agora pelo WhatsApp