Entre em contato com um de nossos especialistas!

Projeto hidráulico piscina em Recife

projeto hidráulico piscina em recife: Garantindo Eficiência e Qualidade

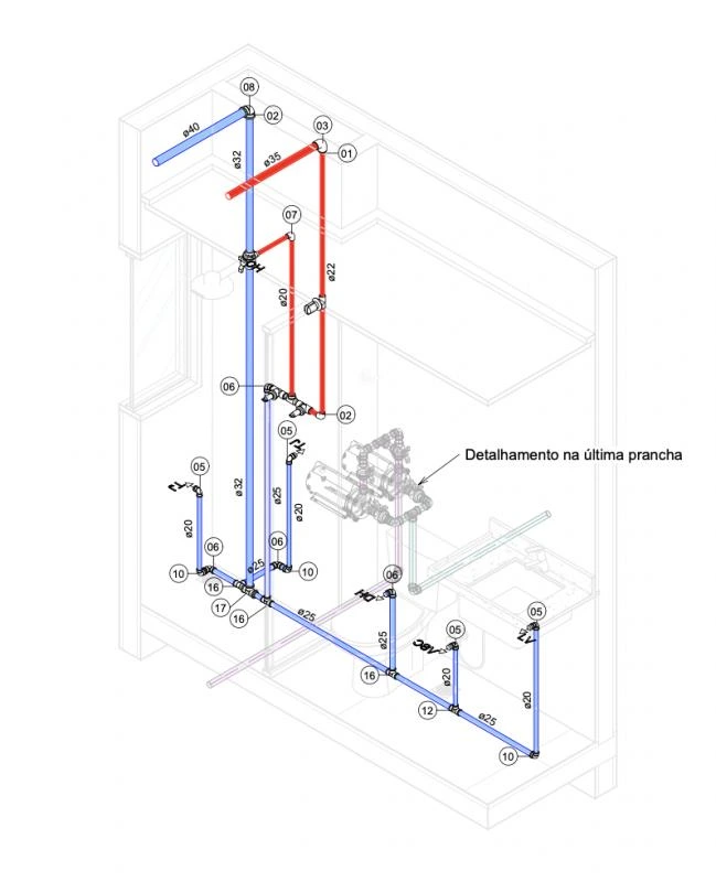
O projeto hidráulico piscina em recife é essencial para garantir a circulação, filtragem e tratamento da água, levando em consideração as particularidades climáticas e estruturais da região.

Com a crescente demanda por espaços de lazer e entretenimento, a instalação de piscinas tem se tornado cada vez mais comum, tornando fundamental a contratação de profissionais qualificados para a execução do projeto hidráulico.

Importância do Projeto Hidráulico de Piscina

O data-link="projeto-hidrossanitario, projeto hidrossanitário" voltado para pscina garante a circulação, filtragem e tratamento da água, respeitando as particularidades climáticas e estruturais da região.

Além disso, ele é responsável por garantir a segurança e o bom funcionamento da piscina, evitando vazamentos e problemas de infiltração.

Com um projeto bem elaborado, é possível garantir a eficiência e durabilidade da piscina, proporcionando momentos de lazer e diversão para toda a família.

Benefícios do Projeto Hidráulico de Piscina em Recife

Um projeto hidráulico bem elaborado garante a circulação adequada da água, evitando acúmulo de sujeira e proliferação de bactérias.

Além disso, ele prevê a instalação de equipamentos de filtragem e tratamento da água, garantindo a qualidade e a transparência da mesma.

Com um projeto hidráulico eficiente, é possível economizar água e produtos químicos, tornando o uso da piscina mais sustentável e econômico.

saiba mais sobre a Empresa TR Engenharia

Fundada em 2018, a TR Engenharia é especializada em execução de obras, reformas e desenvolvimento de projetos prediais no setor de construção civil.

Seus serviços incluem obras residenciais e comerciais, projetos hidrossanitários, elétricos, HVAC, combate a incêndio e consultorias técnicas.

A empresa atende a Recife e a Região Metropolitana, abrangendo Aldeia, Baldalhos, São Lourenço da Mata, Camaragibe e Gravatá.

Com uma equipe qualificada e experiente, a TR Engenharia garante a excelência na execução de projetos hidráulicos de piscinas em Recife, proporcionando segurança, qualidade e eficiência em todas as etapas da obra.

Invista em Qualidade e Segurança para sua Piscina em Recife

O projeto hidráulico de piscina em Recife garante a circulação, filtragem e tratamento da água, respeitando as particularidades climáticas e estruturais da região.

Com a TR Engenharia, você terá a certeza de um serviço de excelência, realizado por profissionais qualificados e comprometidos com a qualidade e a segurança da sua piscina.

Não deixe de investir em um projeto hidráulico bem elaborado, que garantirá a durabilidade, eficiência e sustentabilidade da sua piscina em Recife.

Entre em contato com a TR Engenharia e garanta o melhor para o seu espaço de lazer.

Encontrou o que procurava?

Faça seu orçamento grátis agora mesmo!

Principais regiões onde a TR-Engenharia atende Projeto hidráulico piscina em Recife:

PE
  • Recife
  • Aldeia (Camaragibe)
  • São Lourenço da Mata
  • Camaragibe
  • Gravatá
  • Olinda
  • Jaboatão dos Guararapes
  • Paulista
  • Cabo de Santo Agostinho
  • Igarassu
WhatsApp 1
TR-Engenharia

Olá! Fale agora pelo WhatsApp