Entre em contato com um de nossos especialistas!

Dimensionamento de instalações hidrossanitárias

dimensionamento de instalações hidrossanitárias: Garantindo Eficiência e Economia

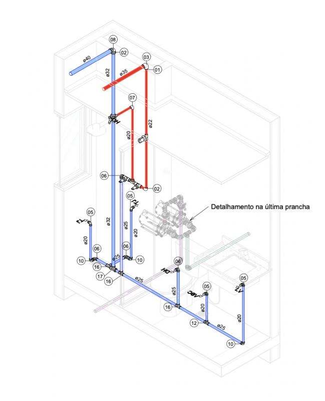
O dimensionamento de instalações hidrossanitárias é um processo fundamental para garantir o bom funcionamento de sistemas de água e esgoto em edificações.

Esse procedimento considera vazões, pressões e quantidade de pontos de consumo, assegurando um sistema funcional e econômico.

Neste artigo, vamos explorar a importância do dimensionamento de instalações hidrossanitárias e como ele contribui para a eficiência e economia em projetos de construção civil.

A Importância do Dimensionamento de Instalações

O dimensionamento de instalações hidrossanitárias é essencial para garantir que a distribuição de água e o escoamento de esgoto atendam às necessidades do projeto.

Ao considerar as vazões de água nos pontos de consumo, é possível dimensionar corretamente os diâmetros das tubulações, evitando problema como baixa pressão e entupimentos.

Um projeto hidrossanitário bem elaborado garante o funcionamento eficiente de água e esgoto em construções.

Ele prevê a distribuição correta da rede hidráulica e o escoamento adequado dos resíduos.

Com o dimensionamento adequado, é possível evitar retrabalhos e desperdícios de materiais, resultando em uma obra mais sustentável e econômica.

Benefícios do Dimensionamento de Instalações

O dimensionamento de instalações hidrossanitárias traz diversos benefícios para os projetos de construção civil.

Além de garantir o funcionamento eficiente do sistema de água e esgoto, ele contribui para a durabilidade das instalações e a redução de custos com manutenção.

Com um sistema bem dimensionado, é possível evitar vazamentos, entupimentos e outros problemas que podem comprometer a qualidade da edificação.

Além disso, o dimensionamento adequado das instalações hidrossanitárias também contribui para a sustentabilidade do projeto, reduzindo o consumo de água e energia.

Com um sistema eficiente, é possível minimizar o impacto ambiental da construção e promover a conscientização sobre o uso racional dos recursos naturais.

Investir em dimensionamento de instalações hidrossanitárias é Fundamental

O dimensionamento de instalações hidrossanitárias é um processo essencial para garantir a eficiência e economia em projetos de construção civil.

Investir em um data-link="projeto-hidrossanitario, projeto hidrossanitário" bem elaborado é fundamental para garantir a qualidade e a sustentabilidade das instalações.

Com um sistema dimensionado corretamente, é possível evitar problemas futuros e garantir o conforto e a segurança dos usuários.

Portanto, ao iniciar um projeto de construção civil, não deixe de considerar o dimensionamento de instalações hidrossanitárias como parte fundamental do processo.

Contar com profissionais especializados e experientes, como a TR Engenharia, é o primeiro passo para o sucesso do seu empreendimento.

Encontrou o que procurava?

Faça seu orçamento grátis agora mesmo!

Principais regiões onde a TR-Engenharia atende Dimensionamento de instalações hidrossanitárias:

PE
  • Recife
  • Aldeia (Camaragibe)
  • São Lourenço da Mata
  • Camaragibe
  • Gravatá
  • Olinda
  • Jaboatão dos Guararapes
  • Paulista
  • Cabo de Santo Agostinho
  • Igarassu
WhatsApp 1
TR-Engenharia

Olá! Fale agora pelo WhatsApp