Entre em contato com um de nossos especialistas!

Projeto hidrossanitário para banheiro

O que é um projeto hidrossanitário para banheiro?

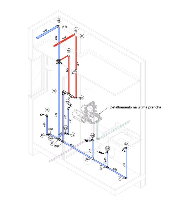
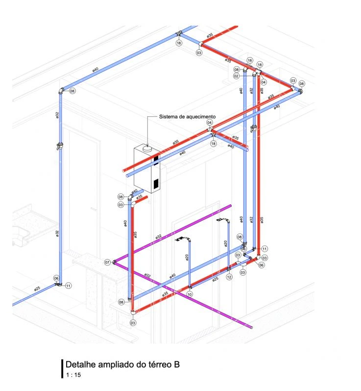
Um projeto hidrossanitário para banheiro é um conjunto de planos e especificações técnicas que visam garantir a correta distribuição de água e esgoto no ambiente.

Esse tipo de projeto é fundamental para assegurar o bom funcionamento dos sistemas hidráulicos e sanitários, proporcionando conforto, higiene e segurança aos usuários.

Importância de um Projeto bem Executado

Um projeto hidrossanitário bem elaborado é essencial para evitar problemas como vazamentos, entupimentos e mau cheiro no banheiro.

Além disso, um projeto adequado contribui para a economia de água e energia, promovendo a sustentabilidade do ambiente construído.

Benefícios de um projeto hidrossanitário para banheiros

Um projeto hidrossanitário bem elaborado permite a utilização eficiente dos recursos hídricos, evitando desperdício e contribuindo para a preservação do meio ambiente.

Com a instalação de dispositivos economizadores de água, como torneiras e chuveiros com controle de vazão, é possível reduzir o consumo de água no banheiro.

Dicas para Elaborar um Bom Projeto Hidrossanitário

Ao elaborar um projeto hidrossanitário para banheiro, é fundamental considerar o planejamento do espaço e os afastamentos necessários entre os diferentes elementos do sistema.

É importante garantir a acessibilidade e a segurança dos usuários, respeitando as normas técnicas e as exigências legais.

Como Utilizar o Projeto Hidrossanitário na Prática?

Para a elaboração e execução de um projeto hidrossanitário para banheiro, é fundamental contar com a especialização de profissionais de engenharia especializados na área.

A TR Engenharia, empresa especializada em projetos hidrossanitários, oferece serviços de alta qualidade e confiabilidade, garantindo a correta execução dos projetos.

Transforme seu Banheiro com um Projeto Hidrossanitário de Qualidade

Investir em um projeto hidrossanitário para banheiro é fundamental para garantir a correta distribuição de água e esgoto, assegurando conforto, higiene e funcionalidade no ambiente.

Com as dicas e benefícios apresentados neste artigo, você poderá transformar seu banheiro em um espaço moderno, eficiente e sustentável.

Conte com a expertise da TR Engenharia para elaborar e executar projetos hidrossanitários de alta qualidade, agregando valor e bem-estar ao seu imóvel.

Encontrou o que procurava?

Faça seu orçamento grátis agora mesmo!

Principais regiões onde a TR-Engenharia atende Projeto hidrossanitário para banheiro:

PE
  • Recife
  • Aldeia (Camaragibe)
  • São Lourenço da Mata
  • Camaragibe
  • Gravatá
  • Olinda
  • Jaboatão dos Guararapes
  • Paulista
  • Cabo de Santo Agostinho
  • Igarassu
WhatsApp 1
TR-Engenharia

Olá! Fale agora pelo WhatsApp