Entre em contato com um de nossos especialistas!

Instalações hidro sanitárias residenciais

instalações hidro sanitárias residenciais: Tudo o que Você Precisa Saber

As instalações hidro sanitárias residenciais são fundamentais para garantir o bom funcionamento de toda a infraestrutura de água e esgoto em casas e apartamentos.

Esses sistemas são responsáveis por fornecer água potável para os moradores, bem como coletar e tratar os resíduos gerados no dia a dia.

Neste artigo, vamos abordar de forma detalhada a importância das instalações hidro sanitárias residenciais, os principais componentes que as compõem e a importância de contar com profissionais especializados, como a TR Engenharia, para a realização desses serviços.

A Importância das Instalações Hidro Sanitárias

Instalações hidro sanitárias residenciais são essenciais para garantir o conforto, a saúde e a segurança dos moradores de uma residência.

Além disso, esses sistemas contribuem para a preservação do meio ambiente, uma vez que um projeto bem elaborado pode reduzir o desperdício de água e minimizar os impactos no sistema de esgoto.

Por isso, é fundamental contar com profissionais qualificados para realizar a instalação e manutenção desses sistemas, garantindo sua eficiência e durabilidade.

Componentes das instalações hidro sanitárias residenciais

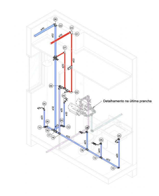
As instalações hidro sanitárias residenciais são compostas por uma série de componentes que trabalham em conjunto para garantir o abastecimento de água potável e a correta coleta e tratamento de esgoto.

Dentre os principais elementos que compõem esses sistemas, podemos citar: tubulações, caixas d'água, válvulas, sifões, ralos, torneiras, chuveiros, vasos sanitários, entre outros.

Cada um desses componentes desempenha um papel fundamental no funcionamento adequado das instalações hidro sanitárias residenciais.

Projeto Hidrossanitário para Banheiro

Um dos ambientes que requer atenção especial no que diz respeito às instalações hidro sanitárias é o banheiro.

O data-link="projeto-hidrossanitario-banheiro, projeto hidrossanitário para banheiro" é essencial para garantir a correta distribuição de água e esgoto, assegurando conforto, higiene e funcionalidade no ambiente.

É importante considerar a disposição dos pontos de água, a escolha de metais sanitários adequados e a correta inclinação das tubulações para garantir o bom funcionamento do sistema.

Invista na Qualidade das Instalações Hidro Sanitárias

As instalações hidro sanitárias residenciais são essenciais para garantir o bom funcionamento de toda a infraestrutura de água e esgoto em uma residência.

Por isso, é fundamental investir na qualidade desses sistemas, contando com profissionais especializados e empresas renomadas, como a TR Engenharia.

Garantir a eficiência e a segurança das instalações hidro sanitárias residenciais é fundamental para o conforto e bem-estar dos moradores, bem como para a preservação do meio ambiente.

Não deixe de priorizar a qualidade e a eficiência na realização desses serviços. Contate a TR Engenharia e garanta instalações hidro sanitárias residenciais de alto padrão.

Encontrou o que procurava?

Faça seu orçamento grátis agora mesmo!

Principais regiões onde a TR-Engenharia atende Instalações hidro sanitárias residenciais:

PE
  • Recife
  • Aldeia (Camaragibe)
  • São Lourenço da Mata
  • Camaragibe
  • Gravatá
  • Olinda
  • Jaboatão dos Guararapes
  • Paulista
  • Cabo de Santo Agostinho
  • Igarassu
WhatsApp 1
TR-Engenharia

Olá! Fale agora pelo WhatsApp