Entre em contato com um de nossos especialistas!

Projeto hidráulico

A importância do projeto hidráulico para edificações

O projeto hidráulico é essencial para o abastecimento de água em edificações, desde pontos de consumo até reservatórios.

Eles asseguram segurança e eficiência no uso da água. Um projeto bem elaborado garante o funcionamento adequado de toda a rede hidráulica, evitando problemas como vazamentos, falta de pressão e desperdício de água.

Neste artigo, vamos abordar a importância do projeto hidráulico, seus principais elementos e como a TR Engenharia pode auxiliar nesse processo.

Elementos do projeto hidráulico

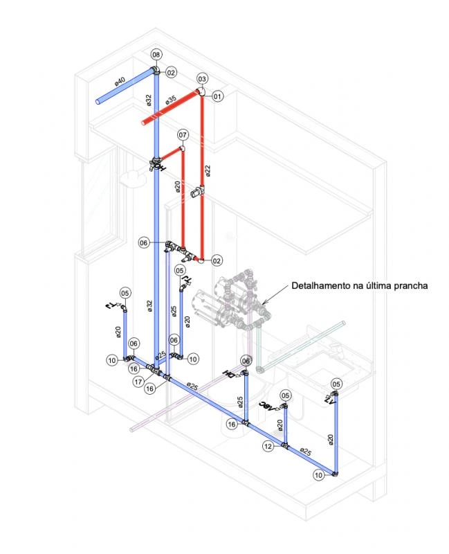
O projeto hidráulico é responsável por dimensionar e especificar todos os componentes necessários para o correto funcionamento do sistema de água de uma edificação.

Isso inclui tubulações, conexões, registros, válvulas, caixas d'água, entre outros.

Além disso, o projeto hidráulico deve levar em consideração a pressão da água, a vazão necessária em cada ponto de consumo e a localização dos reservatórios.

Um dos aspectos mais importantes do projeto hidráulico é a prevenção de problemas como vazamentos e falta de pressão.

A importância do projeto hidráulico para a TR Engenharia

Fundada em 2018, a TR Engenharia é especializada em execução de obras, reformas e desenvolvimento de projetos prediais no setor de construção civil.

Seus serviços incluem obras residenciais e comerciais, projetos hidrossanitários, elétricos, HVAC, combate a incêndio e consultorias técnicas.

A empresa atende a Recife e a Região Metropolitana, abrangendo Aldeia, Baldalhos, São Lourenço da Mata, Camaragibe e Gravatá.

A TR Engenharia destaca-se pela qualidade e eficiência de seus projetos hidráulicos, garantindo o correto dimensionamento e especificação de todos os componentes necessários para o bom funcionamento do sistema de água.

Com uma equipe qualificada e experiente, a empresa oferece soluções personalizadas para cada cliente, atendendo às suas necessidades específicas e garantindo a satisfação de todos os envolvidos.

Projeto hidrossanitário: a importância da integração

Além do projeto hidráulico, é fundamental considerar também o data-link="projeto-hidrossanitario, projeto hidrossanitário" em uma edificação.

Esse tipo de projeto engloba não apenas o abastecimento de água, mas também o escoamento adequado dos resíduos, garantindo o correto funcionamento de toda a rede hidráulica e de esgoto do imóvel.

Um projeto hidrossanitário bem elaborado é essencial para a saúde e o bem-estar dos usuários, evitando problemas como entupimentos e refluxos.

projeto hidráulico: a eficiência e segurança das edificações

O projeto hidráulico é um elemento fundamental para o bom funcionamento de uma edificação, garantindo o abastecimento adequado de água e a segurança dos usuários.

Com um dimensionamento correto e a especificação adequada dos componentes, é possível evitar problemas como vazamentos, falta de pressão e desperdício de água.

A TR Engenharia destaca-se pela qualidade de seus projetos hidráulicos, oferecendo soluções personalizadas e eficientes para cada cliente.

Garanta a eficiência e a segurança da sua edificação com um projeto hidráulico de qualidade. Entre em contato com a TR Engenharia e conheça nossos serviços!

Encontrou o que procurava?

Faça seu orçamento grátis agora mesmo!

Principais regiões onde a TR-Engenharia atende Projeto hidráulico:

PE
  • Recife
  • Aldeia (Camaragibe)
  • São Lourenço da Mata
  • Camaragibe
  • Gravatá
  • Olinda
  • Jaboatão dos Guararapes
  • Paulista
  • Cabo de Santo Agostinho
  • Igarassu
WhatsApp 1
TR-Engenharia

Olá! Fale agora pelo WhatsApp