Entre em contato com um de nossos especialistas!

Projeto hidrossanitário para banheiro em Recife

Importância do projeto hidrossanitário para banheiro em recife

Um projeto hidrossanitário para banheiro em recife é feito conforme normas locais, garantindo eficiência no uso da água e descarte adequado dos resíduos.

Trata-se de um planejamento detalhado que envolve a distribuição de água potável, coleta e tratamento de esgoto, visando garantir o bom funcionamento e a segurança do sistema hidráulico do ambiente.

Com a crescente preocupação com o meio ambiente, investir em um projeto hidrossanitário para banheiro em recife é essencial para reduzir o impacto ambiental e promover o uso consciente da água.

Benefícios de um Projeto Bem Elaborado

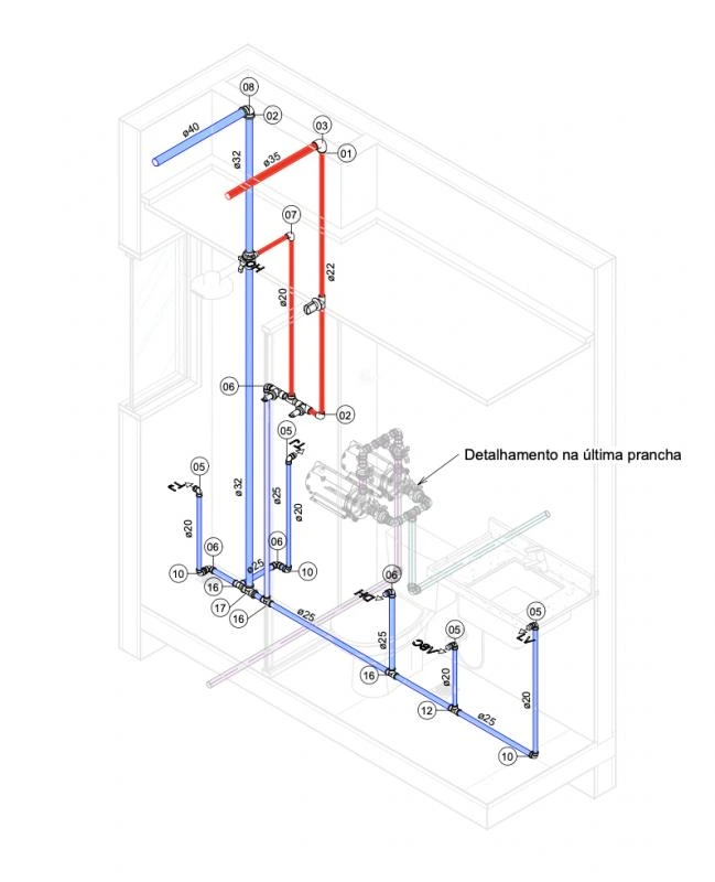
Um data-link="projeto-hidrossanitario-banheiro, projeto hidrossanitário para banheiro"garante a correta distribuição de água e esgoto, assegurando conforto, higiene e funcionalidade no ambiente.

Além disso, a instalação adequada de equipamentos e materiais de qualidade contribui para a durabilidade do sistema, evitando problemas futuros e reduzindo custos com manutenção.

Dicas para Planejar Seu Projeto Hidrossanitário

Ao planejar um projeto hidrossanitário para banheiro em recife, é importante considerar a escolha de materiais e equipamentos adequados.

Opte por produtos de qualidade, que atendam às normas técnicas e garantam a eficiência do sistema hidráulico.

Além disso, contar com a consultoria de profissionais especializados é fundamental para a execução do projeto de forma segura e eficiente.

Escolha de Materiais e Equipamentos

A escolha dos materiais e equipamentos certos é essencial para garantir a eficiência do projeto hidrossanitário para banheiro em recife.

Desde tubulações até metais sanitários, é importante selecionar produtos de qualidade, resistentes e duráveis.

Dessa forma, é possível evitar vazamentos, entupimentos e outros problemas que podem comprometer o funcionamento do sistema hidráulico.

Consultoria Profissional para Execução

Contar com a expertise de profissionais qualificados é fundamental para a execução de um projeto hidrossanitário para banheiro em recife.

A TR Engenharia, fundada em 2018, atua no setor de engenharia e construção civil, especializada em obras, reformas e projetos prediais.

Oferece serviços como obras residenciais e comerciais, projetos hidrossanitários, elétricos, HVAC, combate a incêndio, consultorias e gestão de obras.

Está localizada em Recife e atende a Região Metropolitana, incluindo Aldeia, Baldalhos, São Lourenço da Mata, Camaragibe e Gravatá.

entre em contato

Transforme seu banheiro com um projeto hidrossanitário ideal em Recife e garanta conforto, eficiência e sustentabilidade.

Invista em um planejamento bem elaborado, escolha materiais de qualidade e conte com a consultoria de profissionais especializados.

Não deixe de investir na qualidade e eficiência do seu sistema hidráulico e garanta um ambiente confortável e sustentável para você e sua família. Contate a TR Engenharia e inicie seu projeto hoje mesmo!

Encontrou o que procurava?

Faça seu orçamento grátis agora mesmo!

Principais regiões onde a TR-Engenharia atende Projeto hidrossanitário para banheiro em Recife:

PE
  • Recife
  • Aldeia (Camaragibe)
  • São Lourenço da Mata
  • Camaragibe
  • Gravatá
  • Olinda
  • Jaboatão dos Guararapes
  • Paulista
  • Cabo de Santo Agostinho
  • Igarassu
WhatsApp 1
TR-Engenharia

Olá! Fale agora pelo WhatsApp