Entre em contato com um de nossos especialistas!

Projeto hidráulico industrial

projeto hidráulico industrial: Soluções Eficientes para Grandes Instalações

O projeto hidráulico industrial é essencial para atender às demandas específicas de grandes instalações, com alta vazão e sistemas robustos para abastecimento e drenagem.

Esses projetos são fundamentais para garantir o correto funcionamento de indústrias, fábricas, hospitais, hotéis, entre outros empreendimentos que necessitam de um sistema hidráulico eficiente e seguro.

Neste contexto, a TR Engenharia se destaca como uma empresa especializada na execução de projetos hidráulicos industriais, oferecendo soluções personalizadas e de alta qualidade.

Importância do projeto hidráulico industrial

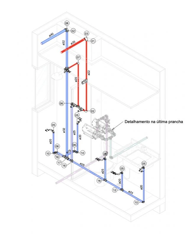
O projeto hidráulico industrial é responsável por dimensionar e especificar todos os componentes necessários para o funcionamento adequado do sistema hidráulico de uma grande instalação.

Isso inclui tubulações, bombas, válvulas, reservatórios, entre outros elementos que garantem o abastecimento de água, o escoamento de efluentes e a prevenção de possíveis problemas, como vazamentos e entupimentos.

Além disso, o projeto hidráulico industrial leva em consideração normas técnicas e legislações vigentes, garantindo a segurança e a conformidade do sistema.

O projeto hidráulico industrial atende demandas específicas de grandes instalações, com alta vazão e sistemas robustos para abastecimento e drenagem.

Benefícios do projeto hidráulico industrial

Investir em um data-link="projeto-hidrossanitario-banheiro, projeto hidrossanitário para banheiro" traz inúmeros benefícios para as empresas, como a redução de custos com manutenção, o aumento da eficiência operacional, a otimização do consumo de água e energia, a valorização do imóvel e a garantia de conformidade com as normas técnicas e ambientais.

Além disso, um sistema hidráulico bem projetado contribui para a preservação do meio ambiente, evitando desperdícios e impactos negativos na natureza.

O projeto hidráulico industrial atende demandas específicas de grandes instalações, com alta vazão e sistemas robustos para abastecimento e drenagem.

Soluções Personalizadas para Grandes Instalações

Diante da importância do projeto hidráulico industrial para o bom funcionamento de grandes instalações, é fundamental contar com uma empresa especializada e comprometida com a qualidade e a eficiência dos serviços prestados.

A TR Engenharia se destaca nesse cenário, oferecendo soluções personalizadas e inovadoras para atender às demandas específicas de cada cliente.

Invista em um projeto hidráulico industrial de qualidade e garanta o sucesso e a segurança de sua instalação.

Encontrou o que procurava?

Faça seu orçamento grátis agora mesmo!

Principais regiões onde a TR-Engenharia atende Projeto hidráulico industrial:

PE
  • Recife
  • Aldeia (Camaragibe)
  • São Lourenço da Mata
  • Camaragibe
  • Gravatá
  • Olinda
  • Jaboatão dos Guararapes
  • Paulista
  • Cabo de Santo Agostinho
  • Igarassu
WhatsApp 1
TR-Engenharia

Olá! Fale agora pelo WhatsApp