Entre em contato com um de nossos especialistas!

Projeto hidráulico e elétrico de piscina

projeto hidráulico e elétrico de piscina: Garantindo o Funcionamento Adequado

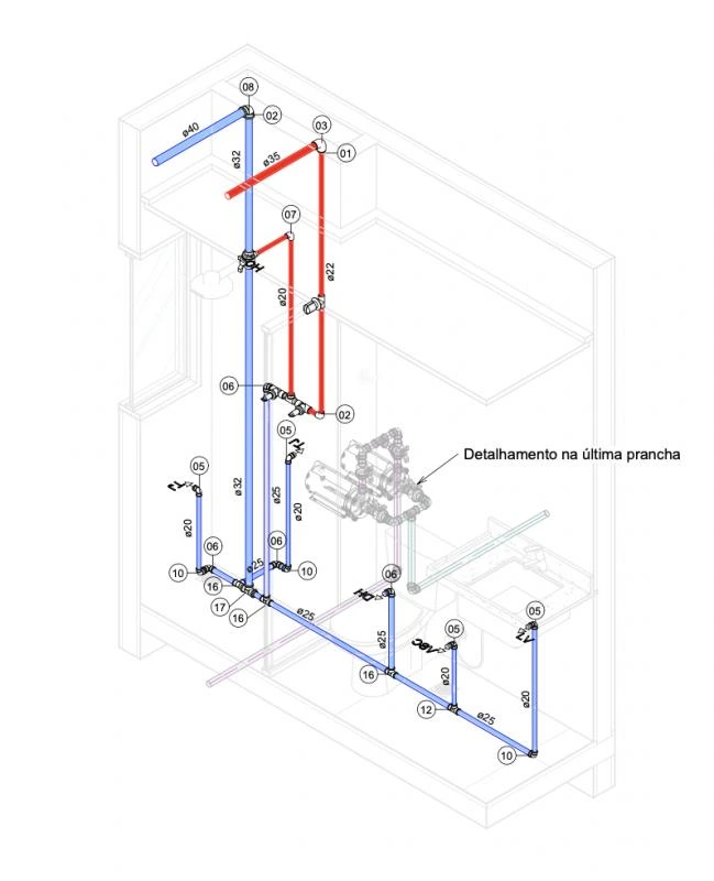
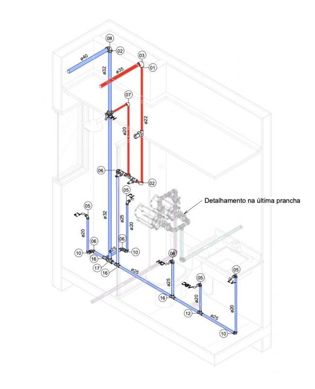
O projeto hidráulico e elétrico de piscina é essencial para garantir o correto funcionamento de todos os equipamentos envolvidos, como bombas, filtros e iluminação, além de assegurar o abastecimento e drenagem adequados da água.

A TR Engenharia, empresa especializada em engenharia e construção civil, oferece serviços de qualidade nesse segmento, assegurando a eficiência e segurança das instalações.

Importância do projeto hidráulico e elétrico de piscina

O projeto hidráulico e elétrico de piscina garante o funcionamento adequado de bombas, filtros e iluminação, além do correto abastecimento e drenagem da água.

Sem um projeto bem elaborado, a piscina pode apresentar problemas de vazamentos, entupimentos e mau funcionamento dos equipamentos, o que pode comprometer a qualidade da água e a segurança dos usuários.

Um projeto bem executado leva em consideração diversos fatores, como a vazão necessária para a circulação da água, a potência dos equipamentos elétricos, a localização das tomadas e interruptores, entre outros aspectos.

Com a expertise da TR Engenharia, é possível garantir que todos esses elementos sejam devidamente planejados e instalados, proporcionando um ambiente seguro e funcional.

Benefícios do projeto hidráulico e elétrico de piscina

O data-link="projeto-eletrico, projeto elétrico" de piscina é uma parte fundamental do planejamento, ao envolver a instalação de equipamentos como bombas, filtros e iluminação, que demandam uma correta distribuição de energia e proteção contra sobrecargas e curtos-circuitos.

Com um projeto elétrico bem elaborado, é possível garantir o funcionamento seguro e eficiente de todos os componentes elétricos da piscina.

O projeto hidráulico e elétrico de piscina garante o funcionamento adequado de bombas, filtros e iluminação, além do correto abastecimento e drenagem da água.

A TR Engenharia, fundada em 2018, atua no setor de engenharia e construção civil, especializada em obras, reformas e projetos prediais.

Oferece serviços como obras residenciais e comerciais, projetos hidrossanitários, elétricos, HVAC, combate a incêndio, consultorias e gestão de obras.

Está localizada em Recife e atende a Região Metropolitana, incluindo Aldeia, Baldalhos, São Lourenço da Mata, Camaragibe e Gravatá.

aposte em um Projeto Hidráulico e Elétrico de Qualidade

Investir em um projeto hidráulico e elétrico de piscina de qualidade é fundamental para garantir o funcionamento adequado de todos os equipamentos, a segurança dos usuários e a durabilidade das instalações.

Com a expertise da TR Engenharia, é possível contar com profissionais capacitados e comprometidos com a excelência na execução dos projetos, assegurando a eficiência e a tranquilidade dos clientes.

Não deixe a qualidade do seu projeto hidráulico e elétrico de piscina de lado.

Entre em contato com a TR Engenharia e garanta a execução de um projeto sob medida para as suas necessidades.

Afinal, a segurança e o conforto dos usuários da piscina dependem de um planejamento adequado e bem executado.

Encontrou o que procurava?

Faça seu orçamento grátis agora mesmo!

Principais regiões onde a TR-Engenharia atende Projeto hidráulico e elétrico de piscina:

PE
  • Recife
  • Aldeia (Camaragibe)
  • São Lourenço da Mata
  • Camaragibe
  • Gravatá
  • Olinda
  • Jaboatão dos Guararapes
  • Paulista
  • Cabo de Santo Agostinho
  • Igarassu
WhatsApp 1
TR-Engenharia

Olá! Fale agora pelo WhatsApp