Entre em contato com um de nossos especialistas!

Projeto estrutural hidráulico e elétrico

projeto estrutural hidráulico e elétrico: A Importância da Integração

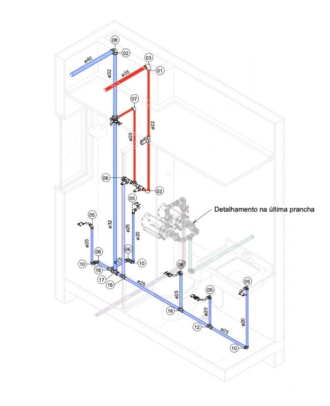
O projeto estrutural hidráulico e elétrico é uma etapa fundamental em qualquer obra, pois integra as principais instalações, evitando conflitos entre tubulações e melhorando o desempenho da construção.

A TR Engenharia, fundada em 2018, é especializada nesse tipo de projeto, atuando no setor de engenharia e construção civil, oferecendo serviços de alta qualidade em Recife e Região Metropolitana.

A Importância do projeto estrutural hidráulico e elétrico

O projeto estrutural hidráulico e elétrico é essencial para garantir o bom funcionamento de uma construção.

A integração dessas instalações permite uma melhor distribuição de água, esgoto e energia elétrica, evitando problemas futuros e garantindo a segurança dos usuários.

Além disso, a correta execução desses projetos contribui para a eficiência energética do imóvel, reduzindo o consumo de recursos naturais.

Benefícios do projeto estrutural hidráulico e elétrico

Ao realizar um projeto estrutural hidráulico e elétrico de qualidade, é possível obter diversos benefícios.

Entre eles, destacam-se a redução de custos com manutenção, a valorização do imóvel no mercado, o aumento do conforto e segurança dos moradores, e a preservação do meio ambiente.

Com a especialização da TR Engenharia nesse tipo de projeto, é possível garantir todos esses benefícios de forma eficiente e sustentável.

Projeto Hidrossanitário para Banheiro

Além do projeto estrutural hidráulico e elétrico, o data-link="projeto-hidrossanitario-banheiro, projeto hidrossanitário para banheiro" também é de extrema importância em uma obra.

Ele garante a correta distribuição de água e esgoto, assegurando conforto, higiene e funcionalidade no ambiente.

Com a expertise da TR Engenharia nesse tipo de projeto, é possível garantir um banheiro bem planejado e funcional, atendendo às necessidades dos usuários de forma eficiente.

Invista em um projeto estrutural hidráulico e elétrico de Qualidade

O projeto estrutural hidráulico e elétrico é essencial para o bom funcionamento de uma construção, evitando conflitos entre tubulações e garantindo a eficiência energética do imóvel.

Com a expertise da TR Engenharia nesse tipo de projeto, é possível obter todos esses benefícios de forma eficiente e sustentável.

Portanto, não hesite em investir em um projeto estrutural hidráulico e elétrico de qualidade para a sua obra. Entre em contato com a TR Engenharia e garanta o sucesso do seu empreendimento.

Encontrou o que procurava?

Faça seu orçamento grátis agora mesmo!

Principais regiões onde a TR-Engenharia atende Projeto estrutural hidráulico e elétrico:

PE
  • Recife
  • Aldeia (Camaragibe)
  • São Lourenço da Mata
  • Camaragibe
  • Gravatá
  • Olinda
  • Jaboatão dos Guararapes
  • Paulista
  • Cabo de Santo Agostinho
  • Igarassu
WhatsApp 1
TR-Engenharia

Olá! Fale agora pelo WhatsApp