Entre em contato com um de nossos especialistas!

Projeto elétrico e hidráulico

A importância do projeto elétrico e hidráulico integrados

O projeto elétrico e hidráulico são partes fundamentais de qualquer construção, seja ela residencial, comercial ou industrial.

Esses projetos são responsáveis por garantir o funcionamento adequado dos sistemas elétricos e hidráulicos, proporcionando segurança, eficiência e conforto aos usuários.

Quando integrados eficientemente, o projeto elétrico e hidráulico otimizam a construção, evitando interferências entre instalações e garantindo a funcionalidade dos sistemas.

Benefícios da integração do projeto elétrico e hidráulico

O projeto elétrico e hidráulico integrados otimizam a construção, evitando interferências entre instalações e garantindo segurança e funcionalidade nos sistemas.

A integração desses projetos permite uma melhor distribuição dos pontos de energia e água, evitando retrabalhos e reduzindo custos.

Além disso, a compatibilização entre as instalações elétricas e hidráulicas evita problemas futuros, como vazamentos e curtos-circuitos.

Importância do projeto hidrossanitário

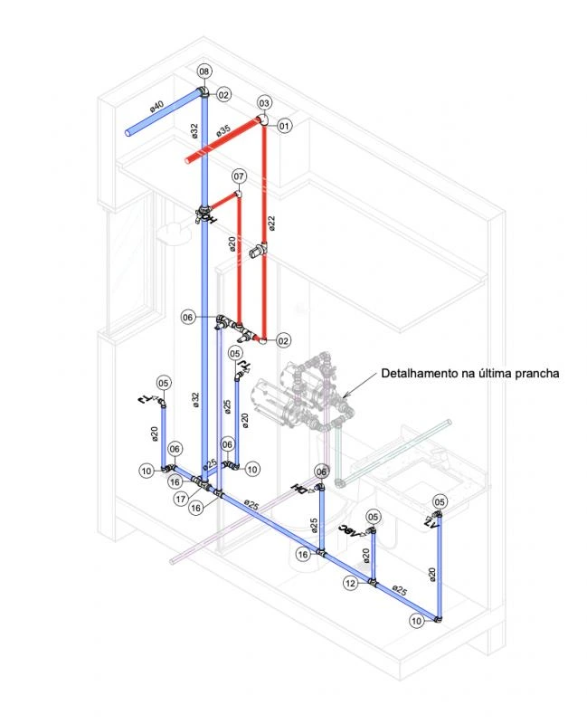
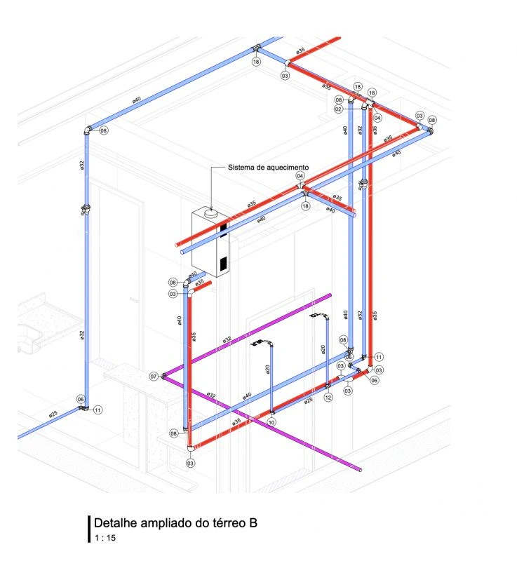
Um data-link="projeto-hidrossanitario, projeto hidrossanitário" bem elaborado garante o funcionamento eficiente de água e esgoto em construções.

Ele prevê a distribuição correta da rede hidráulica e o escoamento adequado dos resíduos.

A correta execução do projeto hidrossanitário é essencial para evitar problemas como entupimentos, vazamentos e mau cheiro, garantindo o conforto e a saúde dos usuários do imóvel.

A importância da integração do projeto elétrico e hidráulico

Em suma, o projeto elétrico e hidráulico integrados são fundamentais para garantir a eficiência e segurança de uma construção.

A integração desses projetos evita problemas futuros, reduz custos e proporciona maior conforto aos usuários.

Por isso, contar com uma empresa especializada como a TR Engenharia é essencial para garantir a qualidade e eficiência na execução desses projetos.

Não deixe de investir em um projeto elétrico e hidráulico bem elaborado, pois isso fará toda a diferença no resultado final da sua construção.

Agora que você conhece a importância do projeto elétrico e hidráulico integrados, não hesite em contatar a TR Engenharia para obter os melhores serviços do mercado.

Garanta a segurança, eficiência e conforto da sua construção com quem entende do assunto.

Contate a TR Engenharia e tenha a certeza de um projeto elétrico e hidráulico de qualidade.

Encontrou o que procurava?

Faça seu orçamento grátis agora mesmo!

Principais regiões onde a TR-Engenharia atende Projeto elétrico e hidráulico:

PE
  • Recife
  • Aldeia (Camaragibe)
  • São Lourenço da Mata
  • Camaragibe
  • Gravatá
  • Olinda
  • Jaboatão dos Guararapes
  • Paulista
  • Cabo de Santo Agostinho
  • Igarassu
WhatsApp 1
TR-Engenharia

Olá! Fale agora pelo WhatsApp