Entre em contato com um de nossos especialistas!

Projeto para esgoto de cozinha

projeto para esgoto de cozinha: Garantindo a Eficiência das Instalações

O projeto para esgoto de cozinha é fundamental para garantir o bom funcionamento das instalações, evitando entupimentos e problemas futuros.

A correta coleta de resíduos líquidos é essencial para manter a higiene e a funcionalidade do ambiente, além de contribuir para a preservação do meio ambiente.

Neste artigo, vamos abordar a importância de um projeto bem elaborado, os principais aspectos a serem considerados e como a TR Engenharia pode auxiliar nesse processo.

A Importância do projeto para esgoto de cozinha

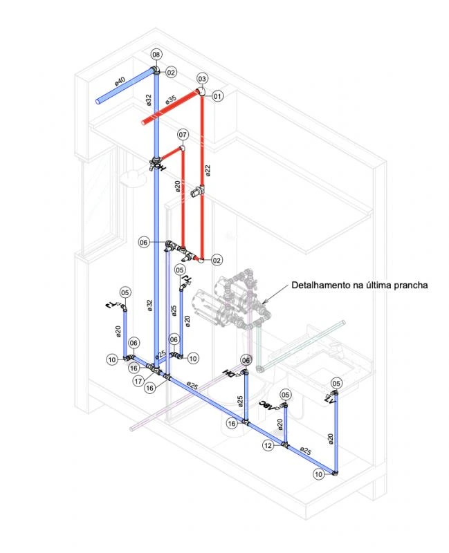
O data-link="projeto-hidrossanitario, projeto hidrossanitário" para esgoto de cozinha prevê a coleta adequada de resíduos líquidos, evitando entupimentos e garantindo o bom funcionamento das instalações.

Além disso, ele contribui para a saúde e o bem-estar dos moradores, evitando o acúmulo de sujeira e possíveis proliferações de bactérias.

Ele prevê a distribuição correta da rede hidráulica e o escoamento adequado dos resíduos.

A TR Engenharia, empresa especializada em projetos prediais, pode auxiliar na elaboração de um projeto para esgoto de cozinha eficiente e adequado às necessidades do cliente.

Como a TR Engenharia Pode Auxiliar?

Desde 2018, a TR Engenharia se dedica à execução de obras, reformas e ao desenvolvimento de projetos prediais no setor de engenharia e construção civil.

Oferece serviços como obras residenciais e comerciais, projetos elétricos, hidrossanitários, HVAC e combate a incêndio, além de consultorias e gestão de obras.

Sua atuação abrange Recife e municípios próximos, como Aldeia, Baldalhos, São Lourenço da Mata, Camaragibe e Gravatá.

Com uma equipe qualificada e comprometida, a TR Engenharia pode auxiliar na elaboração de um projeto para esgoto de cozinha eficiente e adequado às necessidades do cliente.

Além disso, a empresa oferece soluções personalizadas e inovadoras, garantindo a satisfação e a segurança dos clientes em todas as etapas do projeto.

Invista em um projeto para esgoto de cozinha Eficiente

Investir em um projeto para esgoto de cozinha é fundamental para garantir a eficiência e a durabilidade das instalações, evitando problemas futuros e garantindo o bem-estar dos moradores.

A TR Engenharia, com sua expertise e comprometimento, pode auxiliar na elaboração de um projeto personalizado e eficiente, atendendo às necessidades específicas de cada cliente.

Não deixe de contar com profissionais qualificados e experientes para garantir o sucesso do seu projeto. Entre em contato com a TR Engenharia e garanta a excelência em engenharia e construção civil.

Encontrou o que procurava?

Faça seu orçamento grátis agora mesmo!

Principais regiões onde a TR-Engenharia atende Projeto para esgoto de cozinha:

PE
  • Recife
  • Aldeia (Camaragibe)
  • São Lourenço da Mata
  • Camaragibe
  • Gravatá
  • Olinda
  • Jaboatão dos Guararapes
  • Paulista
  • Cabo de Santo Agostinho
  • Igarassu
WhatsApp 1
TR-Engenharia

Olá! Fale agora pelo WhatsApp