Entre em contato com um de nossos especialistas!

Projeto hidráulico para lavanderia em Recife

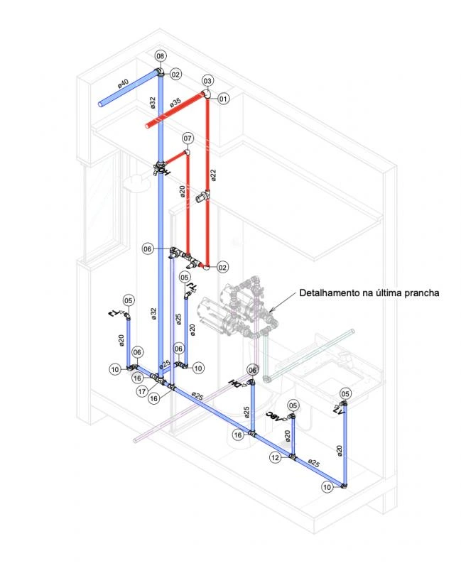
projeto hidráulico para lavanderia em recife: Garantindo Desempenho e Segurança

A elaboração de um projeto hidráulico para lavanderia em recife é fundamental para garantir o bom funcionamento do sistema de água e esgoto, levando em consideração os equipamentos utilizados e a vazão ideal de água.

Neste contexto, a TR Engenharia se destaca como uma empresa especializada na execução de obras e projetos prediais, oferecendo serviços de alta qualidade na região.

Projeto Hidrossanitário para Banheiro

Assim como no projeto hidráulico para lavanderia, o data-link="projeto-hidrossanitario-banheiro, projeto hidrossanitário para banheiro" também é essencial para garantir a correta distribuição de água e esgoto, assegurando conforto, higiene e funcionalidade no ambiente.

É importante considerar a localização dos pontos de água e esgoto, bem como a escolha de materiais de qualidade que garantam a durabilidade do sistema.

TR Engenharia: Especialista em Projetos Hidráulicos

Desde 2018, a TR Engenharia se dedica à execução de obras, reformas e ao desenvolvimento de projetos prediais no setor de engenharia e construção civil.

Com uma equipe qualificada e experiente, a empresa oferece serviços de alta qualidade em Recife e municípios próximos, como Aldeia, Baldalhos, São Lourenço da Mata, Camaragibe e Gravatá.

A TR Engenharia destaca-se pela excelência na execução de projetos hidráulicos, elétricos, hidrossanitários, HVAC e combate a incêndio, além de consultorias e gestão de obras.

Invista em um Projeto Hidráulico de Qualidade

Investir em um projeto hidráulico para lavanderia em recife é fundamental para garantir o bom funcionamento do sistema de água e esgoto, proporcionando desempenho e segurança.

A TR Engenharia é a escolha certa para quem busca qualidade e eficiência na execução de projetos prediais, contando com uma equipe especializada e experiente.

Não deixe de investir em um projeto hidráulico de qualidade para sua lavanderia, garantindo o melhor desempenho e segurança para o seu negócio.

Agora que você conhece a importância de um projeto hidráulico para lavanderia em recife, entre em contato com a TR Engenharia e garanta a excelência na execução do seu projeto.

Invista em qualidade e segurança para o seu empreendimento, contando com uma empresa especializada e comprometida com a satisfação do cliente.

Garanta o sucesso do seu projeto hidráulico com a TR Engenharia!

Encontrou o que procurava?

Faça seu orçamento grátis agora mesmo!

Principais regiões onde a TR-Engenharia atende Projeto hidráulico para lavanderia em Recife:

PE
  • Recife
  • Aldeia (Camaragibe)
  • São Lourenço da Mata
  • Camaragibe
  • Gravatá
  • Olinda
  • Jaboatão dos Guararapes
  • Paulista
  • Cabo de Santo Agostinho
  • Igarassu
WhatsApp 1
TR-Engenharia

Olá! Fale agora pelo WhatsApp